Des espaces optimisés qui répondent aux besoins des grands utilisateurs
Immeuble densifiable
Flexibilité
E-NOVA propose des plateaux allant jusqu’à 2.064 m² ainsi qu’une grande divisibilité à partir de 519 m² afin de répondre aux besoins utilisateurs.
Espaces de détente connecté/partagé en RDC
Le hall A est un espace convivial dédié à la détente, tandis que le hall B dessert un business center pensé pour les nouveaux usages du travail collaboratif où la qualité de vie au travail prend tout son sens.
Business center
Il répond aux nouveaux usages de travail collaboratif avec ses salles de réunion de 10 à 22 places. Une zone gradins ouverte complète l’ensemble pour vos représentations ou vos formations.
Douches et sanitaires
Les occupants bénéficieront de douches au rez-de-chaussée proches des locaux vélos. Offrant une zone de confort aux sportifs et cyclistes de l’immeuble, elles garantissent leurs pratiques dans les meilleures conditions.
Espace fooding en R+5
Pour un confort absolu, un espace de restauration légère avec une terrasse privative, spacieuse et accessible, est réversible en un espace de vie et d’échange convivial.
Aires de bien-être exceptionnels
Jusqu’a
2.064 m²
Par plateau
lot divisible à partir de
519 m²
Balcons et terrasses
695 m²
un espace foofing en
R+5
avec espace de détente
Conditions financières
Conditions
• Indexation annuelle selon la variation ILAT du coût de la construction
• Dépôt de garantie : 3 mois de loyer HT
• Loyer payable par trimestre et d’avance
• Provision pour charges (hors fiscalité) à la charge du preneur
• Bail commercial 6/9 ans.
Une grande modularité des espaces de travail
Fruit d’une approche actuelle de l’immobilier de bureaux modernes, E-NOVA recrée parfaitement les conditions d’épanouissement dont ont besoin les entreprises d’aujourd’hui pour relever leurs défis.
La configuration des plateaux assure l’optimisation des surfaces tout en préservant une lumière naturelle abondante ainsi qu’une très grande souplesse d’aménagement.
Les temps de déplacements sont optimisés avec des circulations verticales et horizontales simples, fonctionnelles et rapides.
Les plateaux sont conçus pour répondre aux modes d’organisation les plus divers : flex office, open spaces, bureaux cloisonnés individuels ou partagés, salles de réunion, salons de réception…
L’immeuble intègre tous les services recherchés en termes de confort de l’utilisateur sans négliger l’efficacité des espaces de travail.
9.445 m² de bureaux
695 m² de terrasses et balcons
144 places de parking
sur 3 niveaux de sous-sol
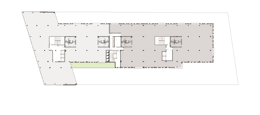
Lot A.0 : 519,2 m² – 8 places de parking
Espace lounge connecté : 157,57 m²
Business center – vestiaire et douches : 325,18 m²
Lot A.1 : 833,1 m² – 12 places de parking – Balcon : 46 m²
Lot B.1 :1.023,2 m² – 15 places de parking
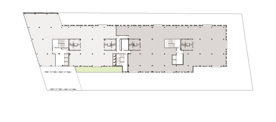
Lot A.2 : 1.040,1 m² – 16 places de parking – Balcon : 46 m²
Lot B.2 : 1.023,2 m² – 16 places de parking
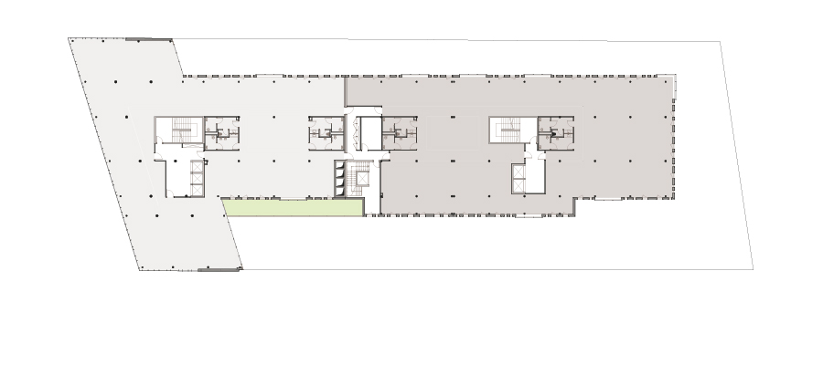
Lot A.3 : 1.040,1 m² – 16 places de parking – Balcon : 46 m²
Lot B.3 : 1.023,2 m² – 16 places de parking
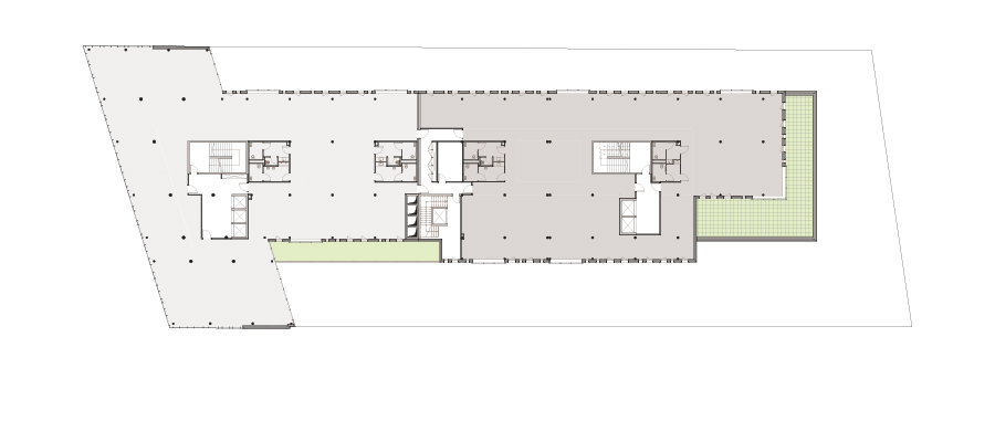
Lot A.4 : 1.040,1 m² – 16 places de parking – Balcon : 46 m²
Lot B.4 : 862,5 m² – 13 places de parking – Terrasse : 113,0 m²
Lot A.5 : 1.040,1 m² – 16 places de parking – Balcon : 46 m²
Espace détente/restauration – Terrasse : 351,4 m²
Plans du projet
Visionnez ou téléchargez le plan masse, le plan du rez-de-chaussée, les plans des 5 étages
ainsi que les 3 niveaux de parking en sous-sol.
« Notre conviction est d’indissocier les phases de projet et de réalisation. »
Chez Schwab Architecte concevons notre métier d’architecte dans le sens large de sa définition, à savoir celui qui conçoit mais aussi qui dirige la réalisation des projets. Nous sommes convaincus que les phases de conception et d’exécution sont indissociables, c’est d’un détail de réalisation que dépend l’aboutissement de l’œuvre entière.
Cette approche est culturellement ancrée dans nos méthodes de travail depuis trois générations d’architectes, ce qui permet à l’Agence Schwab de continuer d’offrir imagination et audace dans le respect des contraintes techniques et financières de réalisation.
